For Sale

Land

School Road, Kelvedon Hatch, Brentwood


£600,000 Guide Price

  • Planning Permission Granted
  • Detached Family Home
  • Sought After Location

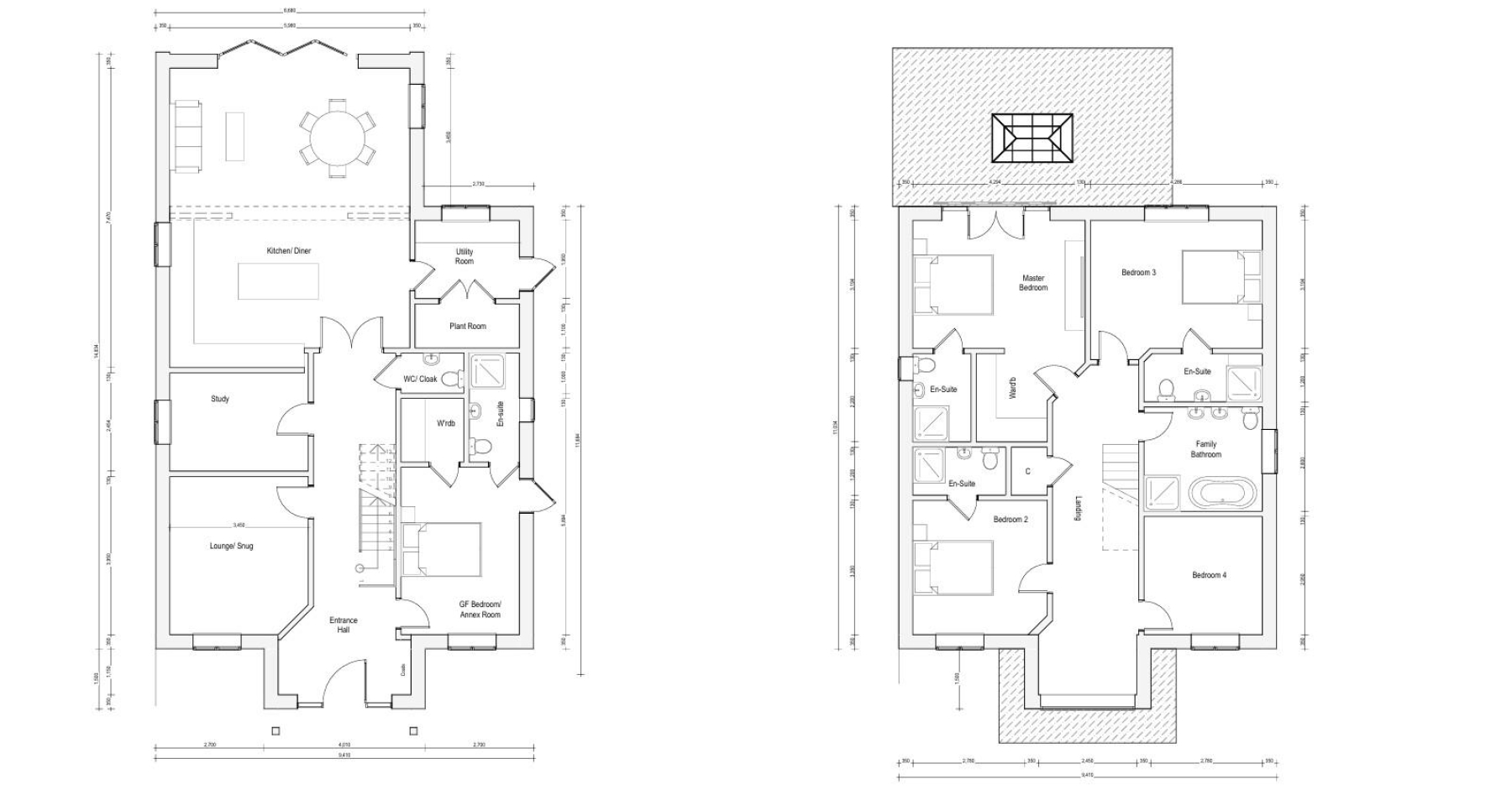
Plot 2 is Nestled in the desirable area of School Road, Kelvedon Hatch, Brentwood, this exceptional plot of land presents a rare opportunity for those looking to invest in a prime location. The land comes with planning permission already granted 25/00420/FUL 'detached two storey dwelling'

Kelvedon Hatch is known for its charming village atmosphere, offering a peaceful retreat while still being conveniently located near essential amenities. The area boasts excellent transport links, providing easy access to nearby towns and cities, making it perfect for families and commuters alike.

This plot of land is not only a sound investment but also a chance to contribute to the community by creating modern family homes in a sought-after location. With the planning permission in place, the groundwork is laid for a project that can cater to the needs of future residents, ensuring a blend of comfort and contemporary living.

Do not miss this unique opportunity to secure a piece of land in a thriving area, where you can bring your vision to life and create homes that will be cherished for years to come.

Loading...
Loading...

Floorplan for School Road

Can't find what you are looking for?


Our helpful team are on hand to answer any queries and concerns you may have.


Get in Touch

This website uses cookies. We use cookies to provide social media features and to analyse our traffic.
You consent to our cookies if you continue to use our website. Read our cookie policy. I understand